免费标准网 - 标准下载、免费文档下载网站
搜索
当前位置:
首页
>
学习手册
> 内容详情
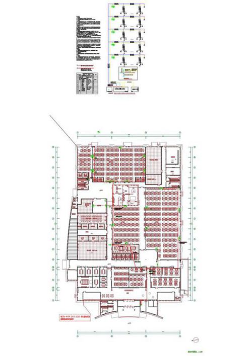
消防水泡图纸
帮助
收藏
举报
上传文档
下载
预览图
消防水泡图纸(1页)下载大小:1.24MB
(图) 消防水泡图纸
消防水泡图纸
收藏
下载
声明:本站为网络服务提供者及网络索引服务平台资源索引自网络/用户分享,如有版权问题,请
联系
站方删除。
不能下载?报告错误
翻页:
学校消防水炮CAD图纸打包(仅供参考)
相关内容
学校消防水炮CAD图纸打包(仅供参考)
24D303-4 消防水泵机械应急启动控制(扫描版)
24D303-4 消防水泵机械应急起泵控制
高清扫描版 24D303-4 消防水泵机械应急启动控制
2022浙ST19 壁挂式轻便消防水龙及室内消火栓安装图集(浙江省给排水标准图集)
下载
免费下载
用户名称:
迷目
注册时间:
2024-05-05
认证方式:
手机认证
资源帮助
上传文档
热门标签
无缝钢管
牛奶
圆钢
建筑
噪声
照明
工业
DB(地震)
DZ(地质矿产)
螺栓
行业计量检定
阀门
综合、术语学、标准化、文献
TB(铁路运输)
电气
山东省
橡胶和塑料工业
GA(公共安全)
国标
行业
地方
团体
企业
计量
手册
建设
文档
首页