当前位置:首页 > 学习手册 > 内容详情

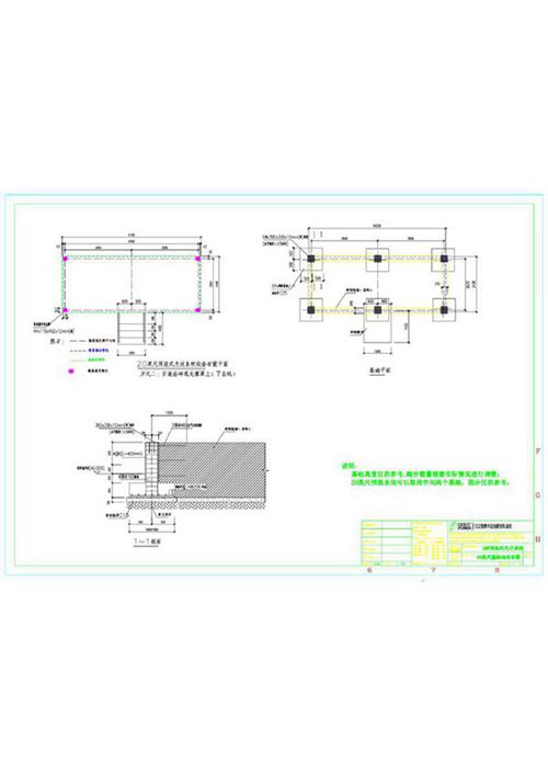
光伏电站 20英尺标准集装箱基础图

光伏电站 20英尺标准集装箱基础图(1页)下载大小:0.51MB

(图) 光伏电站 20英尺标准集装箱基础图

光伏电站 20英尺标准集装箱基础图

声明:本站为网络服务提供者及网络索引服务平台资源索引自网络/用户分享,如有版权问题,请联系站方删除。

不能下载?报告错误