当前位置:首页 > 学习手册 > 内容详情

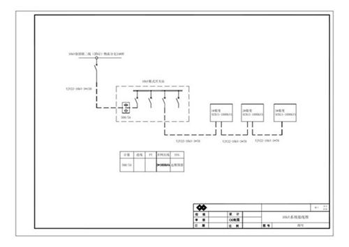
4MW屋顶分布式光伏发电项目接入系统 图纸

4MW屋顶分布式光伏发电项目接入系统 图纸(15页)下载大小:1.26MB

(图) 4MW屋顶分布式光伏发电项目接入系统 图纸

4MW屋顶分布式光伏发电项目接入系统 图纸

声明:本站为网络服务提供者及网络索引服务平台资源索引自网络/用户分享,如有版权问题,请联系站方删除。

不能下载?报告错误