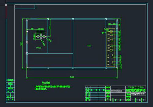
电缆孔示意图双绕组是一种用于电气设备或电力系统的设计图纸,主要用于展示双绕组电缆的布置和连接方式。该示意图详细标注了电缆孔的位置、尺寸以及双绕组的走线路径,确保电缆在安装过程中能够合理排布,避免相互干扰或损坏。双绕组设计通常用于需要高可靠性或冗余供电的场合,通过两组独立的绕组提高系统的稳定性和安全性。该示意图为施工人员提供了清晰的指导,确保电缆安装符合规范要求,同时便于后期维护和检修。
电缆孔示意图双绕组(1页)下载大小:0.55MB

电缆孔示意图双绕组是一种用于电气设备或电力系统的设计图纸,主要用于展示双绕组电缆的布置和连接方式。该示意图详细标注了电缆孔的位置、尺寸以及双绕组的走线路径,确保电缆在安装过程中能够合理排布,避免相互干扰或损坏。双绕组设计通常用于需要高可靠性或冗余供电的场合,通过两组独立的绕组提高系统的稳定性和安全性。该示意图为施工人员提供了清晰的指导,确保电缆安装符合规范要求,同时便于后期维护和检修。
电缆孔示意图双绕组(1页)下载大小:0.55MB

声明:资源收集自用户分享或网络,仅为个人学习参考使用,如侵犯您的权益,请联系我们处理。
不能下载?报告错误