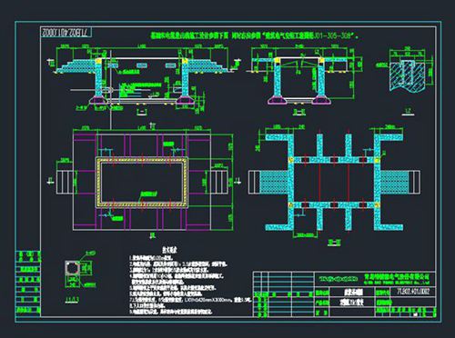
双绕组35kV欧变建议基础图是针对35千伏电压等级的双绕组欧式变电站设计的基础施工图纸。该图纸详细标注了变电站的基础结构、尺寸、材料及施工要求,包括设备安装位置、电缆沟布置、接地网设计等关键信息,确保变电站的稳定性和安全性。图纸遵循相关电力设计规范,适用于工业、商业及居民区等场景的电力配套建设,为施工方提供明确的指导,保障工程质量和效率。
双绕组35kV欧变建议基础图(1页)下载大小:0.49MB

双绕组35kV欧变建议基础图是针对35千伏电压等级的双绕组欧式变电站设计的基础施工图纸。该图纸详细标注了变电站的基础结构、尺寸、材料及施工要求,包括设备安装位置、电缆沟布置、接地网设计等关键信息,确保变电站的稳定性和安全性。图纸遵循相关电力设计规范,适用于工业、商业及居民区等场景的电力配套建设,为施工方提供明确的指导,保障工程质量和效率。
双绕组35kV欧变建议基础图(1页)下载大小:0.49MB

声明:资源收集自用户分享或网络,仅为个人学习参考使用,如侵犯您的权益,请联系我们处理。
不能下载?报告错误