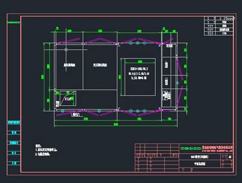
双绕组35kV欧变平面布置图展示了变电站的平面布局设计,主要包含高压侧35kV进线、双绕组变压器、低压侧出线及相关配电设备的空间分布。该布置图遵循欧洲标准设计,注重紧凑性和功能性,确保设备间距合理、维护通道畅通,同时满足电气安全与操作便利性要求。图中通常标注了变压器位置、开关柜排列、电缆沟走向及安全防护设施,适用于工业或城市电网的变电需求。
双绕组35kV欧变平面布置图(1页)下载大小:0.2MB

双绕组35kV欧变平面布置图展示了变电站的平面布局设计,主要包含高压侧35kV进线、双绕组变压器、低压侧出线及相关配电设备的空间分布。该布置图遵循欧洲标准设计,注重紧凑性和功能性,确保设备间距合理、维护通道畅通,同时满足电气安全与操作便利性要求。图中通常标注了变压器位置、开关柜排列、电缆沟走向及安全防护设施,适用于工业或城市电网的变电需求。
双绕组35kV欧变平面布置图(1页)下载大小:0.2MB

声明:资源收集自用户分享或网络,仅为个人学习参考使用,如侵犯您的权益,请联系我们处理。
不能下载?报告错误